物件詳細
情報更新日:2025年9月14日
この物件は成約になりました
物件名:大山観光ビル2F(中央1-4-23-2F)
阪急伊丹線 伊丹駅 徒歩1分の商店街にあるビルの2Fテナント募集です!
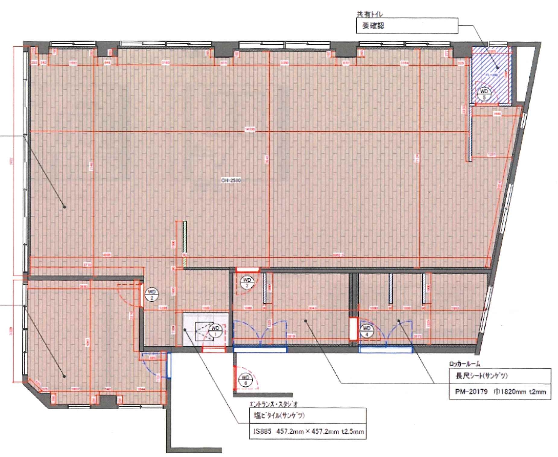
現在はフィットネス倶楽部として使用されており、とてもキレイなテナント内装があります!
そのままフィットネス系などはすぐに利用できると思いますし、駅近くなのに専用駐輪場なども確保できるので
学習塾などにも最適だと思われます!駅前でこれだけきれいな内装が残って、この広さが確保できることは珍しいので
伊丹駅周辺でテナントをお探しの方は必見です!
現在はフィットネス倶楽部として使用されており、とてもキレイなテナント内装があります!
そのままフィットネス系などはすぐに利用できると思いますし、駅近くなのに専用駐輪場なども確保できるので
学習塾などにも最適だと思われます!駅前でこれだけきれいな内装が残って、この広さが確保できることは珍しいので
伊丹駅周辺でテナントをお探しの方は必見です!
| 賃料 | 坪単価 | 管理費/共益費 | 敷金/保証金 | 礼金/解約引 | 種別 |
|---|---|---|---|---|---|
| 店舗 / 事務所 | |||||
| 専有面積 | 築年月 | 築年数 | 所在階 | 構造 | |
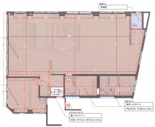
| 約152㎡ 約46坪 | 昭和45年11月 | 55年 | 4階/2階建て | 鉄筋コンクリート造 | |
所在地:伊丹市中央1-4-23
最寄駅:
最寄駅:
地図情報
物件情報
| 交通機関 | |||
|---|---|---|---|
| 専有面積 | 約152㎡ 約46坪 | 現況 | 空き予定 |
| 入口方角 | 東 | 所在階 | 4階/地上2階建て |
| 駐車場 | 敷地内有り | 取引態様 | 専任 |
| 現状 | 空き予定 / 居抜き | ||
| 外観 | 看板設置相談可 | ||
| 内装・設備 | 冷暖房あり / 上下水道完備 / 電力完備 / ミニキッチンあり / 専用トイレ | ||
| セキュリティ | |||
| 特徴 | |||
| 駐車場・駐輪場 | 駐車場完備 / 駐輪場完備 / バイク置場完備 / 来客用駐車スペースあり | ||
| 備考 | ★賃料と礼金には消費税が含まれております ★賃貸保証会社と火災保険には加入加入義務がございます ★飲食店はNGとなっております(軽飲食相談可) ★駐車場2台 と 駐輪スペース も賃料に含まれております! |
||











